Construction d’une nouvelle cantine scolaire à Gramat (Lot)

Cantine scolaire de Gramat – étude acoustique des réfectoires par Espace 9

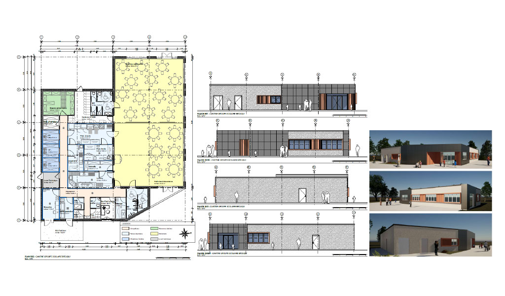
 Le projet

La Ville de Gramat a engagé la construction d’une nouvelle cantine destinée à améliorer les conditions d’accueil des enfants du groupe scolaire Clément Brouqui. Ce nouvel espace de restauration permettra d’accompagner l’augmentation des effectifs, d’optimiser l’organisation des services et d’élever le niveau de confort des enfants et du personnel pendant les repas.
Le projet s’inscrit dans un programme global de requalification du site scolaire, comprenant également des travaux énergétiques, des réaménagements fonctionnels et des améliorations de l’exploitation quotidienne du bâtiment. Espace 9 intervient sur ce projet pour traiter spécifiquement les enjeux acoustiques liés au quotidien sonore d’un espace de restauration collective, essentiel au bien-être des élèves et au bon fonctionnement du service municipal.

Les enjeux acoustiques

  • Limitation de la gêne sonore dans les réfectoires pour préserver le confort des enfants et du personnel
  • Dimensionnement des traitements acoustiques adaptés à la fréquentation et au volume des salles
  • Réduction de la réverbération et du niveau sonore global en période de forte occupation
  • Intégration d’un traitement compatible avec l’hygiène, la maintenance et les contraintes HACCP
  • Recommandations sur le mobilier, les matériaux et leurs performances acoustiques
    .

Données du projet

  • Maître d’ouvrage : Mairie de Gramat
  • Maître d’œuvre :
    • Architecte : Détails Group
    • Acoustique : Espace 9 (agence Toulouse – Occitanie)
  • Surface : 450 m² de surface de plancher
  • Coût : 750 k€ HT
  • Date de réalisation : En cours – phase APD
  • Mission assurée par Espace 9 : Études acoustiques bâtiment – Dimensionnement des solutions de correction acoustique